Appartamento non lontano dal centro città e dal mare - nella fase di costruzione
- Codice : 01136
- Localita : Parenzo
- Superficie immobile : 69 m2
- Superficie particela : 0 m2
- Distanza dal centro : 3500 m
- Distanza dal mare : 3500 m
- Piano : 1
- Numero di piani : 1
- Numero di camere : 3
- Numero di camere da letto : 2
- Numero di bagni : 1
- Parcheggio : Si
- Cantina : Si
- Anno di costruzione : 2025
- Efficienza energ. : Non specificato
Parenzo, Istria, Parenzo
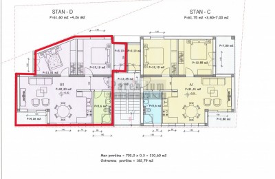
È in vendita un appartamento in un nuovo edificio. L'appartamento è situato al primo piano della palazzina, su un totale di 4 appartamenti.
Una scala esterna conduce al primo piano.
L'appartamento D, 69m2, si trova al primo piano di un edificio residenziale. L'appartamento è composto da un corridoio, due camere da letto, un bagno e una cucina con sala da pranzo e soggiorno. Dal soggiorno si accede ad un terrazzo di 4,26 mq. L'appartamento dispone di un ripostiglio di 3 mq.
L'appartamento sarà riscaldato tramite pompa di calore in due camere da letto e nel soggiorno.
Ceramiche italiane di qualità saranno posizionate sul pavimento, in tutto l'appartamento. In questa fase di costruzione, i clienti possono ancora scegliere la ceramica che preferiscono.
La carpenteria sarà in PVC con tapparelle elettriche.
L'appartamento dispone di un posto auto.
Il completamento dell'edificio è previsto per marzo 2026.
L'acquirente NON paga l'imposta sulla vendita degli immobili, perché il venditore è una persona giuridica. Nel caso in cui una persona giuridica acquisti un appartamento, l'acquirente è esente dal pagamento dell'IVA nella misura del 25%.
Appartamento D
Visualizza tutti gli Immobili Parenzo
NOTA: Non rispondiamo a eventuali errori nelle descrizioni delle proprietà, ma vogliamo essere il più precisi e accurati possibile. La commissione di agenzia è del 3%.
